1 引言
傳統設計方法設計制造周期長、 信息共享程度底、 復雜的空間曲面形狀難以表達, 并且設計質量和結果難以預測。隨著計算機技術的不斷提高和計算機性能的不斷完善, 計算機在制造業中所承擔的任務越來越多且越來越復雜和精細。現借助基于 UG的 CAD/CAM系統, 由客戶提供的基于 CAD/CAM系統的產品數據模型源文件以及技術要求明細表, 整個的設計工作便可以展開, 通過模具CAD/CAM類軟件強大的三維造型功能和特殊的制作方法, 將模具逐步設計出, 再通過加工模塊生成走刀路徑, 最后應用 POST功能進行后處理, 自動生成數控加工 G代碼, 傳進數控設備。由于整個設計過程是依據數模源文件進行的, 數字化文件又便于保存和管理, 從而可以顯著提高生產效率和制造精度、 減少誤差。
2 整體設計思路及制作方法
通過參數化方法建模, 首先依據汽車座椅加強梁原件的尺寸及拉延模明細表要求, 使用 UG軟件分別制作出凸模、 凹模、 壓邊圈以及各個組裝件的實體造型, 進而展開設計出完整的上模、 下模、 及壓邊圈, 再將它們逐一裝配起來, 并輸出內容詳實的二維圖紙, 接下來利用 UG加工模塊進行數控加工仿真, 并進一步利用POST功能輸出數控加工走刀程序 G代碼。整個設計過程可由流程圖 1 來表示。

3 參數化建模
從產品設計到制造的整個過程中, 尤其在產品設計的初步階段, 產品的幾何形狀和尺寸不可避免的要反復修改、 協調和優化。如果利用 CAD軟件進行非參數化建模, 那么哪怕要改變圖形的一個尺寸和結構, 也需要修改原模型, 甚至重新建模。如果用數值驅動零件和部件的特征尺寸, 在進行產品設計時, 只添加多組數據, 若要重新設計, 只需改變部分數據即可, 參數化設計的思想即是如此。
3.1 基于特征的參數化設計
基于特征建模的參數化設計是參數化設計的一種最基本和最重要的方法。特征即是有特定意義的幾何形狀。特征的編輯是參數化設計的必要手段, 通過對特征參數(幾何參數、 定位參數)的編輯可以實現產品模型的隨動。基于特征的參數化設計將基于特征的設計與參數化設計有機的結合起來, 使用較完整的帶有語義的特征描述方式, 并使特征本身就包含參數化變動所需的成員變量和成員函數, 將面向對象的技術應用于特征的描述, 在造型中也使用參數化, 隨時可調整產品結構, 尺寸, 并因此帶動特征自身的變動, 實現產品的基于特征的參數化設計。
3.2 基于草圖的參數化設計
草圖是指帶有約束關系的二維圖形, 利用草圖可以創建參數化的截面, 通過對截面進行旋轉、 拉深或掃掠操作即可得到相應的參數化模型。此方法對于截面復雜的零件較為實用, 但工作量較大。在實際應用中, 一般將不易或不能運用特征描述的部分使用草圖功能, 其余部分仍使用特征建模。
草圖創建后, 需要對其進行定位和約束。是否具有約束是草圖區別于曲線的基本特征, 也是能否實現參數化的關鍵一環。在進行草圖約束前一定要注意對截面進行細致的約束分析, 避免出現少約束或過約束的情況, 否則將無法創建合格的參數化模型。
3.3 裝配參數化設計
UG裝配過程是在裝配中建立部件之間的鏈接關系, 是通過開發研究與設計技術關聯條件在部件間建立約束關系來確定部件在產品中的位置。在裝配中, 部件的幾何體是被裝配引用, 而不是復制到裝配中的。不管如何編輯或在何時編輯部件, 整個裝配部件保持關聯性。
4 拉延模 CAD
本文在基于草圖的參數化設計的基礎上, 穿插進行基于特征的參數化建模和裝配的參數化設計, 從而對于顯著提高模具 CAD設計效率有重要意義。
4.1 自潤導板的參數化設計
通過建立草圖的全約束和部件家族, 實現自潤導板 2 孔到 4孔個數和大小的轉變(圖 3)。如圖 2 所示為 2 孔自潤導板的全約束效果。

圖 2 完全約束



圖 3 參數化- 部件族的應用
4.2 模具主體的設計
按照圖 1 的流程由產品數模源文件(圖 4)及技術要求明細表進行參數化設計。分別得到產品的上模、 下模以及壓邊圈(圖 5)。再將它們與標準件裝配起來, 得到最終設計效果(圖 6)。

圖 4 產品數模


圖 5 壓邊圈的草圖及參數化建模后效果

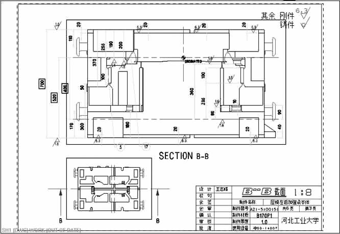
圖 6 模具裝配圖
4.3 二維工程出圖
利用 UG NX實體建模功能創建的零件和裝配模型, 可以引到工程圖模塊中, 快速的生成二維工程圖, 并且二維工程圖與維實體模型是完全關聯的, 實體模型的尺寸、 形狀和位置的改都會引起二維工程圖做出相應變化。

圖 7 模具組裝圖二維出圖
5 基于 UG的計算機輔助加工
使用 UG 對汽車坐椅加強梁的凹模部分進行計算機輔助加這一過程與前面 CAD 部分有機結合, 是 CAD/CAM系統的關環節。 利用 UG進行計算機輔助加工可以按圖 8 的流程進行。

圖 8 用凹模進行 CAM 的流程
使用 UG分別進行了以下四道加工工序: 型芯粗加工→ 型芯面精加工→ 型芯外分型面精加工→ 固定軸曲面輪廓銑
下面是其中型芯粗加工和外分型面精加工工序的走刀路徑放。

型芯粗加工

型芯外分型面精加工
圖 9 刀路軌跡回放
隨后系統進行后處理, 生成程序指定路徑文件名的程序文件, 其中型芯粗加工的 G指令如圖 10 所示。 可將其另存為機床易識別的文件類型, 詳細的 G指令由于篇幅所限不予列出。
6 結束語
使用 CAD/CAM類軟件進行汽車覆蓋件拉延模的設計和模擬加工是實際可行并具有先進性意義的, 本文設計出了產品的拉延上模、 拉延下模以及壓邊圈, 運用參數化方法生成了標準化零件族, 其中部件族的運用對于企業今后縮短整個生產周期有重要意義。本文完成了從三維參數化建模生成二維工程圖紙的過程, 通過對 UG加工模塊的應用, 進行了計算機仿真加工, 并運用 POST功能自動生成數控加工 G代碼程序, 它與生產實踐相聯系, 經過對部分 G代碼程序的進一步優化, 可將其應用于生產。

圖 10 對凹模粗加工生成的 G 代碼
2024-11
西門子公司推出了最新版的Siemens NX 12.0版本(UG12.0),該軟件提供了當今市場上唯一可擴展的多學科平臺,通過與Mentor Graphics Capital Harness和Xpedition的緊密集成,整合了電氣,機械和控制系統。可消除了從開發到制造的每個步驟… [了解更多]
2024-11
ug10.0破解版自西門子收購以來改名為NX了,不過很多老用戶還是習慣UG這個名字,UG是一款國際知名的功能全面、專業的模具三維設計軟件。本次小編為你帶來的UG10.0,NX10.0新增了航空設計選項、創意塑型、新增偏置3D曲線、新增繪制“截面線”命令,修剪與延伸命令分割成兩個命… [了解更多]
2024-11
ug nx12.0簡體中文版正式發布了,這是西門子發布的一款全新的cad設計軟件,以快速的幫助用戶進行CAD的設計;本站提供ug nx12.0簡體中文版下載全新版本中原來基礎上融入更多功能而且兼容win10系統。… [了解更多]
2024-11
在UG NX2406版本中,軟件在智能化、自動化、仿真精度、用戶體驗等方面進行了進一步優化升級,為用戶提供了更加高效便捷的設計制造解決方案。例如,引入智能語音識別技術,使用戶可以通過語音命令控制軟件,提高操作的易用性;自動編程功能的增強,減少了人工干預,提高了編程的準確性和效率。… [了解更多]