1.加工工藝和夾具設計原理
1.1 加工工藝
(1)在普通車床上粗、精車各外圓臺階和 M30×1.5 螺紋。
(2)在鉆床上用鉆模定位鉆出 準86 外圓平面上的三個均布通孔 準11。
(3)在立式銑床上銑削加工出 M30×1.5 螺紋上的鍵槽。
(4)在外圓磨床上精磨 φ380-0.035 外圓。
(5) 在車床上用專用夾具以 準380-0.035外圓為定位基準, 加工 R74的圓弧表面, 此時, 實際上己把 R74 的圓弧表面的加工轉變為鏜削準148 的孔徑加工。
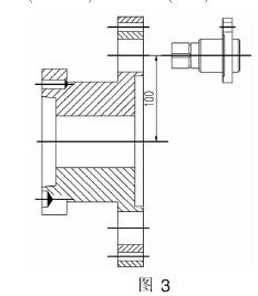
1.2 夾具設計原理
夾具設計的原理是通過夾具安裝工件,使工件待加工圓弧 R74 的圓心處在主軸軸線上。因此只需將基準軸軸線相對于主軸軸線平行偏離一個準確的距離(偏心距)即可。 如(圖 3)所示:

在夾具盤圓周面上可均勻分布同時安裝六個零件進行一次裝夾同時加工。利用削邊銷采用工件上已鉆削出的三個均布孔中的其中一個作為工件止轉定位,可保證圓弧表面的位置精度。 如(圖 4)所示:

2.自由度限制分析
工件在夾具上安裝進行圓弧表面的加工需要限制工件的六個自由度。 夾具體的大平面限制了工件的三個自由度,止轉削邊銷限制了一個自由度,圓柱孔定位限制了兩個自由度。 如(圖 5)所示:

(1) 大平面定位相當于三個支承點限制了工件的三個自由度,X移動、y移動、Z移動。
(2)止轉削邊銷定位相當于一個支承點 ,它限制了工件的一個自由度 X轉動。
(3)圓柱孔表面定位相當于二個支承點 ,它限制了二個自由度 Y轉動、Z轉動。
3.定位誤差和定位精度的分析
由自山度限制分析可知,夾具采用了大平面、圓柱孔、止轉圓柱銷進行定位,將會產生一定的定位誤差,要保證圓弧面與工件軸線的距離及圓弧面在工件軸線中的對稱要求,必須使工件在夾具中的定位誤差滿足定位精度要求。
3.1 尺寸鏈分析
準380-0.035軸與孔 準38H6(+00.016)的最大間隙為:
0.016-(-0.035)=0.051
則工件軸線與主軸軸線距離為:
100.025+0.051=100.076
若 R74 轉為 準148 孔徑加工時控制公差為±0.05mm,則:
(1)圓弧面與工件軸線的最大距離為:
100.076-73.975=26.101<26.26
(2)圓弧面與工件軸線的最小距離為:
99.924-74.025=25.899>25.74
故滿足圓弧面與工件軸線的距離要求, 同時 準148 孔徑控制在公差為±0.05mm 時,也滿足 R74 圓弧的精度要求。
3.2 轉角誤差對圓弧面對稱度的影響分析
工件采用一孔兩面定位時,由于兩個定位副是柱面會產生一定的轉角誤差,其轉角誤差與軸孔配合的最大間隙、中心距有關。分析計算如下:
(1)圓柱孔和圓柱銷定位對工件自身產生轉動角度的誤差。
準38 孔與軸最大間隙 X1max=0.051,準11 孔與圓柱銷配合最大間隙為 X2max=0.45,中心距為 33mm,根據轉角誤差計算公式可得:△a=tg-1(X1max+X2ma)/2L△a=tg-17.5909090901-3≈0.4350
由此可知轉角誤差較小,對工件圓弧面的對稱度影響不大,能滿足圖紙要求。
(2)圓柱銷定位,使工件相對夾具軸線所產生的轉角誤差為:
△銷=tg-10.45/2×133≈0.0970
其轉角誤差極小,故對工件圓弧面的對稱度影響不大,能滿足圖紙要求。
(3)圓柱孔定位,使工件相對夾具軸線所產生的轉角誤差為:
△孔=tg-10.051/2×100≈0.0150
其轉角誤差更小,故對工件圓弧面的對稱度影響不大,能滿足圖紙要求。
△總=△銷+△孔=0.0969288570+0.014610420≈0.1120
因轉角誤差很小,故工件在夾具中定位不影響工件圓弧面在工件中的對稱性。
4.夾具體可安裝工件個數檢驗
根據圖紙要求, 工件軸線應處于夾具回轉盤的 準200mm 圓周上,夾具盤表面所能容納工件安裝的個數受夾具體中心與工件最大外圓處的兩條切線所夾的角度影響,如(如圖 6)所示,其夾角為 50°56′,則盤面最多可容納工件個數為:
n=360° / 50°56′=7.068(個)
故選擇在夾具體盤面上均布安裝六個工件能滿足要求。

另夾具盤最大外徑的選擇與工件最大外徑及工件在夾具盤中安裝的偏心距有關:2×100+86=286(mm)故選擇央具盤最大外徑為 準290mm≥286mm 能滿足要求。
5.受力分析和強度校核
5.1 受力分析
加工 R74 圓弧面時,由于切削力的影響,圓柱止轉削邊銷軸會受到切削力影響造成的一個剪應力的剪切作用,且工件旋轉時由于工件的中心不在旋轉中心使得工件產生離心力, 使圓柱止轉削邊銷軸受力,剪應力和離心力的作用會使圓柱止轉削邊銷軸產生剪切變形。 因采用多件同時加工,六個工件在夾具盤中的安裝是均布的,故離心力得于消除,因孔、軸配合的間隙影響,為保證加工過程中工件位置不發生變化,必須具有足夠的夾緊力,夾緊力的大小要能克服工件的位置變動。
5.2 強度校核
通過受力分析可知,圓柱止轉削邊銷的變形量大小主要受剪應力和離心力的影響。 剪應力的大小主要由主切削力決定,離心力的大小主要由離心半徑、工件偏重、角速度等決定,因工件在夾具體盤面均勻分布離心力得以消除;故圓柱止轉削邊銷軸的強度必須能夠克服主切削力造成的剪應力。
(1)主切削力的計算:根據主切削力的近似計算公式,主切削力的大小主要與工件材料、切削深度和進給量有關。 Fz=2000apf(出自勞動出版社 96 新版《車工工藝》第七章第三節),工件材料位鋼件、若車削時選取 ap=1mm、f=0.117mm/r,則:
Fz=2000×1×0.117=234(N)
(2)剪應力的計算 :根據圓柱止轉削邊銷軸直徑為 準10mm、截面積 A=πR2=3.14×52≈0.00785(M2)。τ=Q/A=FZ/A=234÷0.00785=29808.9172 (Pa)≈29.809(Mpa)
(3)強度校核:圓柱止轉削邊銷軸的材料為 45#,材料許用應力為30Mpa。 根據剪切強度條件,τ= Q/A≤〔τ〕τ≈29.809(Mp9)≤〔τ〕故:圓柱止轉削邊銷軸符合剪切強度要求。
6.夾緊裝置和夾緊力
6.1 夾緊裝置
工件的定位和夾緊是相互聯系非常密切的兩個工作過程。工件定位以后必須采用一定的裝置把工件壓緊夾牢在定位元件上,使工件在加工過程中部不會由于切削力、工件重力、離心力或慣性力等的作用而發生位置變化或產生振動,以保證加工精度和安全生產。 本夾具上工件的夾緊利用了工件自有的右旋 M30×1.5 螺紋, 采用鎖緊螺母如(圖 7)作為受力元件進行人工夾緊。

6.2 夾緊力
確定夾緊力就是確定夾緊力的大小、方向和作用點三要素。
(1)大小:考慮工件在加工過程中的定位位置應保持不變 ,因此夾緊力的大小應使工件定位端面與夾具盤定位大平面所產生的擵擦力能抵消主切削力的作用。
(2)方向:夾緊力的方向與軸向切削力的方向一致 ,垂直于夾具體的定位大平面。
(3)作用點:夾緊力作用點與工件定位支承點相對應 ,作用于靠近工件加工表面的工件定位平面上,符合夾緊力作用點的選擇要求。
7.夾具制作工藝
夾具由夾具體、定位裝置、夾緊裝置三部分組成。夾具體與機床主軸通過主軸定位錐面與主軸法蘭盤相連接(與自定心卡盤在車床主軸上的安裝連接原理相同), 同時具備對工件進行安裝定位和夾緊等裝置。 其結構簡單,但制造較為復雜。 其裝配圖如(圖 8)所示:

夾具體的加工工藝
(1)在三爪卡盤上裝夾配車夾具體與主軸配合的前端錐度滎l:4、大徑 準106.3750-0.01mm、深度為 15mm 及定位小端面,并粗車 準170 mm外圓和 準60 mm 孔徑。
(2)在鉆床上較正小端面的平面度誤差小于 0.01mm,進行準確分度鉆削 4 個 M12 深 22 mm 底孔徑和 準19.05H7mm 孔徑,并精鉸準19.05 H7 mm 深 6.5mm 孔徑。
(3)攻絲完成 4 個 M12 深 22mm 螺紋加工。
(4)夾具體安裝在車床主軸上進行大端面、準290mm、準170mm、準140mm外圓及 準152mm、準60mm 內孔的粗、精加工。
(5)在數控銑床或加工中心中以小端面為基準,用百分表校正大端面和大外圓誤差小于 0.01mm 進行 6 個 準38H6 和 6 個 準10H7 均布定位孔的粗、精加工,保證各定位孔軸線與基準面垂直,其表面糙度在 R1.6 以下。
(6)倒角、去毛刺,完成夾具體的加工。圓柱止轉削邊銷裝配
(1)削邊銷與夾具體的裝配采用 準10H7 / k6 的過渡配合,可根據夾具體中 準10H7 的實際孔徑尺寸配磨定位軸頸尺寸,保證其配合 最大間隙為 0.014mm,最大過盈為 0.01mm。
(2)安裝止轉定位削邊銷(準11h6)的削邊方向應垂直于削邊銷中心與夾具體中心的連線,削邊銷軸線則垂直于夾具體的大端面。 止轉削邊銷如(圖 9)所示

8.工件加工工藝
工件在完成外圓、 長度、M30×1.5 三角螺紋和鉆模定位鉆削圓周均布孔 準011 之后, 采用上述夾具安裝定位進行徑向局部圓弧表面的加工,此時實際上已將 R74 圓弧表面轉換成 準148mm 的孔徑加工,其工藝如下
(1)粗鏜工件孔徑至 準147mm。
(2)精鏜工件孔徑至 準148+_0.05mm,(采用內卡鉗測量)。
(3)倒角、去毛刺完成工件的加工。
9.加工效率對比分析
加工效率是體現該夾具的設計的主要目的,在數控銑床和CNC加工中心中,只能實現一次一件的加工;裝夾工件時間長,電能耗高,加工效率低,不經濟,操作不當時還會影響到工件的質量;在普通 X-62W 萬能銑床采用夾具裝夾加工,一次可實現六件同時加工,裝夾時間短,電能損耗低,同時還拓展了機床的使用范圍,提高了生產效率。在完成工件批量加工的準備和調試后,對單一零件徑向局部圓弧表面的加工進行如下比較

通過上述的對比和分析可知, 在普通 X-62W 萬能立銑上進行多件同時加工的方法要比在數控銑床或高速加工中心上進行單件加工的方法效率高得多,主要是加工方法和選用刀具的不同。
10.結束語
徑向局部圓弧表面的加工在實踐中時常會遇到, 應用比較廣泛。針對不同利率和技術要求,應采取不同的加工方法,以提高生產效率。對于影響切削過程和刀具工作的各種因素, 關鍵要抓住主要因素,并處理好其他關連因素,才能使切削加工順利進行。 本安論述的例子,其主要因素是工件的裝夾定位。 只要解決了夾具這一主要問題,再協調好刀具材料、冷卻和排屑等因素,問題便可迎刃而解。 實踐證明,利用所設計的夾具,在 x-62w 銑床上進行徑向局部圓弧表面零件的加工,能滿足零件技術要求,取得良好效果,并且一次裝夾可實現多件同時加工,生產效率明顯提高,達到了夾具設計的預期目的。
該夾具結構簡單,夾具材料采用 HT250,制造方便,并具有一定的通用性能。采用該夾具在 X-62W 銑床上實現多件同時加工,是保證產品質量和提高生產效率的一種有效途徑
2024-11
本文以組合式六角亭模型為實例,分析工藝難點與加工可行性,指出該模型的加工難點是模型形狀不規則和整體剛性差,并通過設計新的工藝方案解決加工難點,完成了模型整體的加工。新的加工工藝有助于提高加工效率和精度,為五軸數控加工提供了一個典型案例,對于五軸加工中心數控加工也具有指導作用和重要… [了解更多]
2024-11
宇匠數控 備注:為保證文章的完整度,本文核心內容由PDF格式顯示,如未有顯示請刷新或轉換瀏覽器嘗試,手機瀏覽可能無法正常使用!本文摘要:通過對混聯五軸加工中心自適應深度學習控制方法的 研 究,可 知 此 方 法 的 創 新 之 處 在 于:1)建 立 了 機 床 的 運 動 學 … [了解更多]
2024-11
宇匠數控 備注:為保證文章的完整度,本文核心內容由PDF格式顯示,如未有顯示請刷新或轉換瀏覽器嘗試,手機瀏覽可能無法正常使用!本文摘要:1)本文建立了基于轉角向量和雙弦弓高的局部能量光順算法,該方法以刀心點光順前后最大許用偏移量作為約束,通過計算拐角處微小線段局部能量最優解,可使… [了解更多]
2024-11
在機測量技術由于其成本低、檢測效率高、無需二次裝夾等優勢被廣泛用于零件加工測量當中,使得五軸加工中心和五軸鉆攻中心,同時又兼具測量功能。在機測量系統的構成如圖1所示,硬件部分主要是由高精度探頭、信號接收器、機床整個本體,軟件部分由機床控制系統、測量軟件等組成[8]。待零件加工完成… [了解更多]